Webbs Factory, Brockton Street, Northampton

For Sale £175,000

2 1 1
A well presented two bedroom top floor apartment in the renowned and historic Webbs Factory, converted by Clayson Loft Company in 2000. The apartment is offered in excellent condition and retains all the stylish features of the original conversion such as exposed brick walls, steelwork and wooden flooring. The accommodation comprising in brief entrance hall with storage, open plan reception containing sitting room and kitchen with integrated appliances. The property also benefits from double glazing with factory style windows, gas central heating, allocated parking in a secure gated car park and use of an on site residents only gym.

Ground Floor

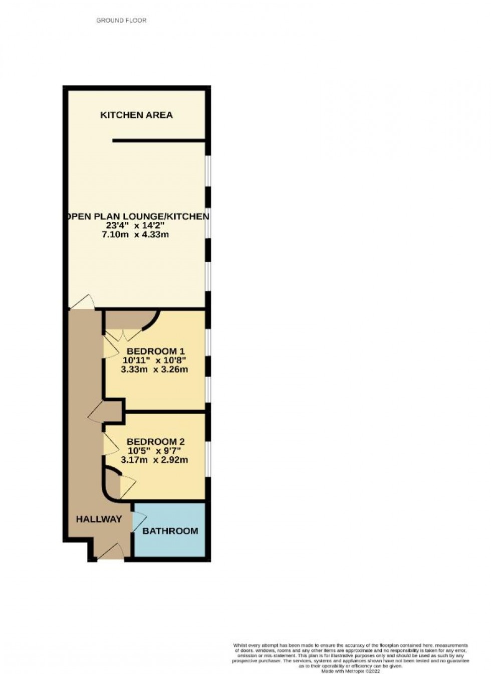
Entrance Hall

Approached via solid entrance door, designer radiator, storage cupboard, wooden flooring, doors to;

Open Plan Reception Room (7.1m x 4.33m)

Lounge Area

Three windows to the side aspect, two designer radiators, TV point, wooden flooring.

Kitchen Area

Stainless steel sink unit set into a range of stainless steel fronted base units with granite work surfaces over, metro style wall tiling, matching wall mounted units, built in oven and hob with stainless steel canopy extractor hood over, built in dishwasher, fridge and freezer, free standing washer/dryer, tiled floor.

Bedroom One (3.33m x 3.17)

Two windows to the side aspect, designer radiator, double fitted wardrobe, wooden flooring.

Bedroom Two (2.92m x 3.17)

Window to the side aspect, designer radiator, fitted wardrobe, wooden flooring.

Bathroom (2.21m x 1.87m)

Modern suite comprising glass mounted wash hand basin, low level wc, "P" shaped bath with curved shower screen and mains powered shower over, fully tiled to the main area, half tiled to the remainder, extractor fan.

Agents Notes

Local Authority: West Northamptonshire
Council Tax Band: C

The vendor informs us there are approximately 99 years remaining on the lease, the service charges are approximately £136 per month including water, car park maintenance and use of the on site gym, the buildings insurance is £80 per month, and the ground rent is £150 per year.

Directions

No 35 in located to the rear of the building. As you enter Brocton Street turn left, next right and right again and the access gates will be directly in front.

  • Renowned Factory Conversion
  • Well Presented
  • Top Floor
  • Two Bedrooms
  • Open Plan
  • Allocated Secure Parking
  • On Site Gym
  • Energy Efficiency Rating: C
Floorplan for Webbs Factory, Brockton Street, Northampton
EPC Graph for Webbs Factory, Brockton Street, Northampton

Calculate Your Stamp Duty

£

Results

Stamp Duty To Pay:

Effective Rate:

Tax Band % Taxable Sum Tax

Get an instant online valuation

Find out how much your property is worth