Pantolf Place, Rugby

Sold Subject to Contract, Offers Over, £260,000

3 1 1
This beautifully refurbished three-bedroom family home presents an excellent opportunity for buyers seeking a move-in-ready property with the added benefit of no onward chain. The recent programme of improvements includes a full rewire, fresh carpets throughout and complete redecoration, creating a bright and welcoming interior.
The ground floor offers an inviting entrance hall leading to a spacious lounge and dining area, complemented by a well-appointed kitchen. Upstairs, there are three comfortable bedrooms and a modern shower room. Outside, the property features off-road parking for two vehicles and an enclosed rear garden that provides a private space for relaxation or play. Open views to the rear with gated access.
Newbold on Avon offers a delightful blend of riverside tranquillity and village charm, just a short distance from Rugby town centre. Rich in history and character, this sought-after area features the scenic River Avon and Oxford Canal, with picturesque walks and historic landmarks such as St. Botolph’s Church and the Newbold Tunnel adding to its appeal. Residents enjoy a welcoming community atmosphere, complemented by local shops, cosy pubs, and well-regarded schools. With easy access to Rugby’s transport links including M1 and M6, and direct rail services to London and Birmingham. Newbold on Avon is perfect for buyers seeking a peaceful lifestyle with excellent connectivity and timeless charm.

Accommodation Comprises

Entry via composite door into:

Entrance Hall

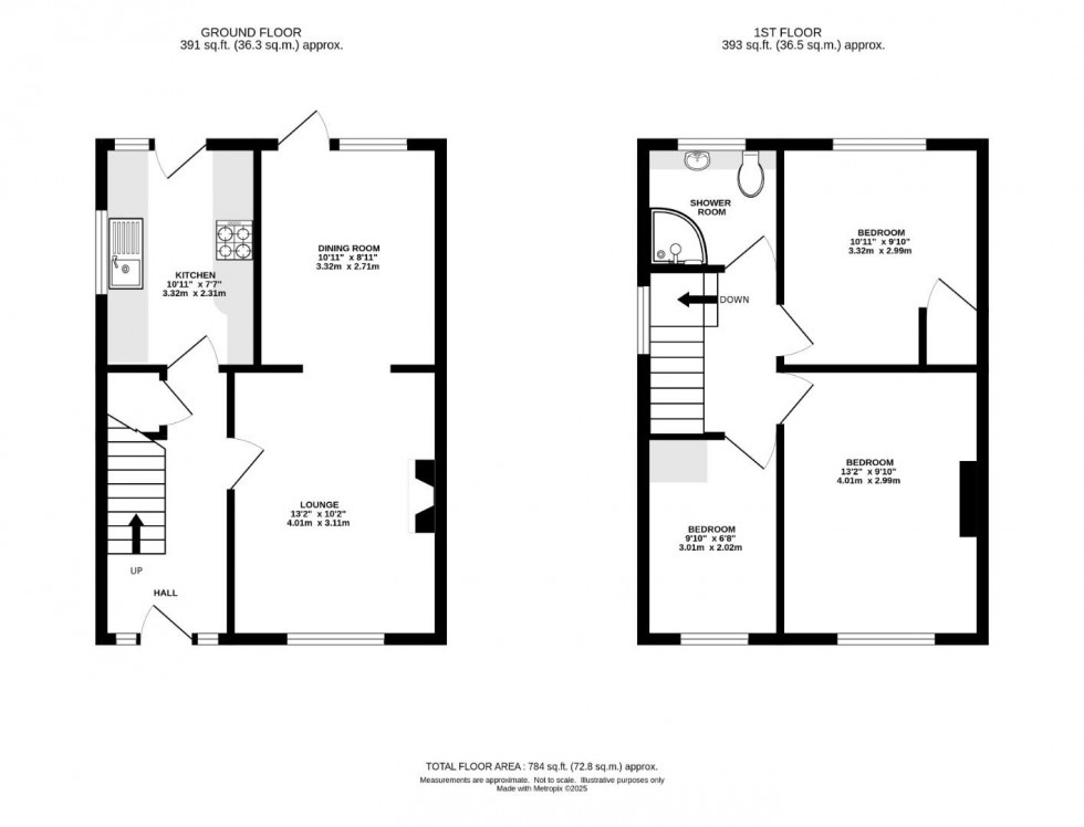
Stairs rising to first floor. Radiator. Doors of to lounge and kitchen.

Lounge Area (4.01m x 3.11m)

Window to front aspect. Fireplace with gas fire. Opening through to:

Dining Area (3.32m x 2.71m)

Window and door to rear aspect. Radiator. Door to rear garden.

Kitchen (3.32m x 2.31m)

Fitted with a range of base and eye level units with work surface space incorporating a stainless steel sink unit with mixer tap. Gas hob with extractor over. Double electric oven and grill. Built in dishwasher. Built in fridge/freezer. Washing machine. Tumble dryer. Window to side. Window to rear. Door to rear garden.

First Floor Landing

Window to side. Access to loft space. Doors off to bedrooms and shower room.

Bedroom One (4.01m x 2.99m)

Window to front. Radiator.

Bedroom Two (3.32m x 2.99m)

Window to rear. Radiator. Built in cupboard housing central heating boiler.

Bedroom Three (3.01m x 2.02m)

Window to front aspect. Radiator. Storage cupboard.

Shower Room

With suite to comprise; quadrant shower cubicle, low level w.c. and pedestal wash hand basin. Radiator. Extractor fan. Window to rear elevation.

Front Garden

Block paved driveway. Area laid to lawn with shrub border. Gated access to rear garden.

Rear Garden

Mainly laid to lawn with block paved patio area. Paving and trellis to side. Two sheds. Flower and shrub borders. Enclosed by timber fencing. Gate opening to Newbold Quarry Park.

Agents Note

Council Tax Band: C
Energy Efficiency Rating: D

  • Three Bedroom
  • Semi Detached Home
  • Open Views To The Rear
  • New Carpets
  • Newly Rewired
  • No Onward Chain
  • Off Road Parking
  • Energy Efficiency Rating D
  • Redecorated Throughout
  • Close To Amenities
Floorplan for Pantolf Place, Rugby
EPC Graph for Pantolf Place, Rugby

Calculate Your Stamp Duty

£

Results

Stamp Duty To Pay:

Effective Rate:

Tax Band % Taxable Sum Tax

Get an instant online valuation

Find out how much your property is worth